Развернуть карту

Продажа офиса в БЦ на Ильинском ш., 25900000 руб.

Объект недвижимости снят с реализации

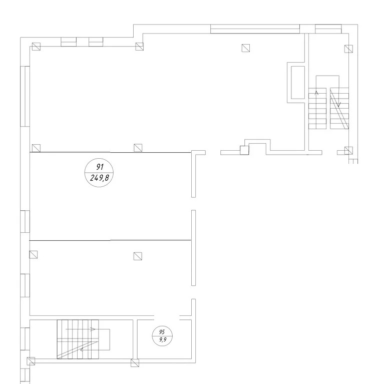
  • Общая площадь, м²259.7
  • Класс зданияB
  • Тип зданияБизнес-центр
  • Этаж3 из 4
  • Планировкаоткрытая
  • Комнатстудия

Продается офис в бизнес-центре на 3-м этаже в густозаселенном районе, в окружении множества новых жилых домов бизнес-класса. Здание БЦ примыкает к многоэтажному жилому монолитно-кирпичному дому. Есть парковка возле БЦ. Удобное месторасположение между Новорижским ш. и Волоколамским ш. БЦ расположен на Ильинском шоссе. Удобный заезд. Офис состоит из двух помещений площадью 249,8 кв.м. и 9,9 кв.м. Физически разделен на три части перегородками. Стены и потолки покрашены. Свободная и открытая планировка. Подходит под различные виды деятельности, офис, медицинский центр, шоу-рум и т.д. Хороший потенциал для сдачи в аренду.